към Етажа
Жилищна сграда Galeria 1
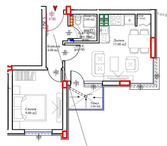
Апартамент № А27
А27
Тип
Апартамент
Под тип
Двустаен
Чиста площ
ЧП
49,30 м2
Обща площ
ОП
56,21 м2
Етаж
8
Вход
А
Цена на м2
€ / м2
-
Крайна цена
Цена
-
Цена:
-
Статус:
Продаден
Изложение:
Изток
Схема на плащане
Първоначална вноска
На Акт 16
Процент
80 %
20 %
Добавете в любими
Премахни
Апартамент №А27
Жилищна сграда Galeria 1Изпратете запитване за имота
* С натискането на бутона се съгласявам личните ми данни да бъдат съхранявани и обработвани за целите на сайта.
Още имоти
№
Етаж
Вход
Тип
Под тип
ЧП
ОЧ
ОП
Цена
Статус
А-25
8
А
Апартамент
Двустаен
48,17
9,19
57,36
-
А-26
8
А
Апартамент
Двустаен
42,20
8,45
50,65
-
А-27
8
А
Апартамент
Двустаен
49,30
6,91
56,21
-
А-28
8
А
Апартамент
Тристаен
83,80
10,15
93,95
-
Б-31
8
Б
Апартамент
Тристаен
91,70
19,18
110,88
-
Б-32
8
Б
Апартамент
Двустаен
54,66
3,14
57,80
-
Б-33
8
Б
Апартамент
Двустаен
49,30
7,47
56,77
-
Б-34
8
Б
Апартамент
Двустаен
42,20
8,45
50,65
-
Б-35
8
Б
Апартамент
Тристаен
48,17
9,19
57,36
-
Жилищна сграда Galeria 1
Апартамент № А27
Изложение:
Изток
Етаж
8
Тип
Двустаен
Обща площ
56,21 m2
Цена
-
Статус
+359 899 004 363
galeriavarna@gmail.com
гр. Варна, ул. "Никола Симов" 9
Галерия Варна
Web Design & SEO by