Контакти
към Етажа

Жилищна сграда Galeria 2

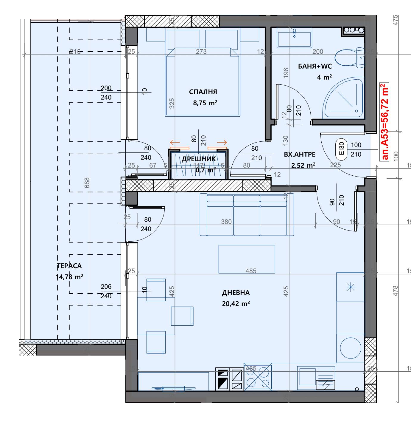
Апартамент № А53

А53
Тип Апартамент
Под тип Двустаен
Чиста площ ЧП 56,72 м2
Обща площ ОП 68,72 м2
Етаж 8
Вход А
Цена на м2 € / м2 -
Крайна цена Цена -
Цена: -
Статус: Продаден
Изложение: Изток
Residance Building Galeria 2
Апартамент А53 - Галерия Варна

Апартамент №А53

Жилищна сграда Galeria 2

Изпратете запитване за имота

  • Това поле е за целите на валидирането и трябва да останат непроменени.

* С натискането на бутона се съгласявам личните ми данни да бъдат съхранявани и обработвани за целите на сайта.

Жилищна сграда Galeria 2

Апартамент № А53

Изложение: Изток
Етаж 8
Тип Двустаен
Чиста площ 56,72 m2
Общи части 12,00 m2
Обща площ 68,72 m2
Цена -
Статус Продаден
Residance Building Galeria 2
+359 899 004 363 galeriavarna@gmail.com гр. Варна, ул. "Никола Симов" 9
Галерия Варна Web Design & SEO by
+359 899 004 363 galeriavarna@gmail.com гр. Варна, ул. "Никола Симов" 9
Търсене на имот:
170 имота в
продажба