към Етажа
Жилищен комплекс Galeria 3
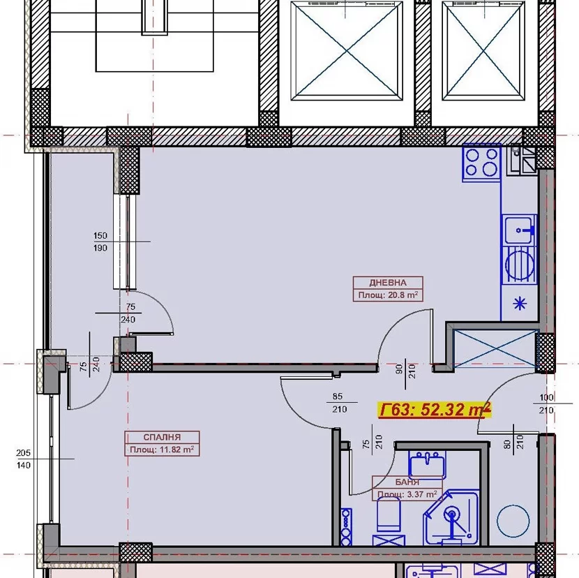
Апартамент № Г63
Г63
Тип
Апартамент
Под тип
Двустаен
Чиста площ
ЧП
52,32 м2
Обща площ
ОП
61,87 м2
Етаж
10
Вход
Г
Цена на м2
€ / м2
-
Крайна цена
Цена
-
Цена:
-
Статус:
Продаден
Изложение:
Изток
Схема на плащане
На пр. договор
На външна мазилка
На Акт 16
Процент
80 %
10 %
10 %
Добавете в любими
Премахни
Апартамент №Г63
Жилищен комплекс Galeria 3Изпратете запитване за имота
* С натискането на бутона се съгласявам личните ми данни да бъдат съхранявани и обработвани за целите на сайта.
Още имоти
№
Етаж
Вход
Тип
Под тип
ЧП
ОЧ
ОП
Цена
Статус
Г-57
10
Г
Апартамент
Двустаен
56,79
10,37
67,16
-
Г-58
10
Г
Апартамент
Двустаен
58,00
10,59
68,59
-
Г-59
10
Г
Апартамент
Тристаен
82,95
15,15
98,10
-
Г-60
10
Г
Апартамент
Двустаен
61,86
11,30
73,16
-
Г-61
10
Г
Апартамент
Двустаен
67,09
12,25
79,34
-
Г-62
10
Г
Апартамент
Двустаен
65,31
11,93
77,24
-
Г-63
10
Г
Апартамент
Двустаен
52,32
9,55
61,87
-
В-49
10
В
Апартамент
Двустаен
65,94
12,04
77,98
-
В-50
10
В
Апартамент
Двустаен
63,03
11,51
74,54
-
В-51
10
В
Апартамент
Тристаен
72,32
13,21
85,53
-
В-52
10
В
Апартамент
Двустаен
56,72
10,36
67,08
-
В-53 - Апартамент - Тристаен
В-53
10
В
Апартамент
Тристаен
82,19
15,01
97,20
168 000 €
В-54
10
В
Апартамент
Двустаен
56,75
10,36
67,11
-
Жилищен комплекс Galeria 3
Апартамент № Г63
Изложение:
Изток
Етаж
10
Тип
Двустаен
Обща площ
61,87 m2
Цена
-
Статус
+359 899 004 363
galeriavarna@gmail.com
гр. Варна, ул. "Никола Симов" 9
Галерия Варна
Web Design & SEO by